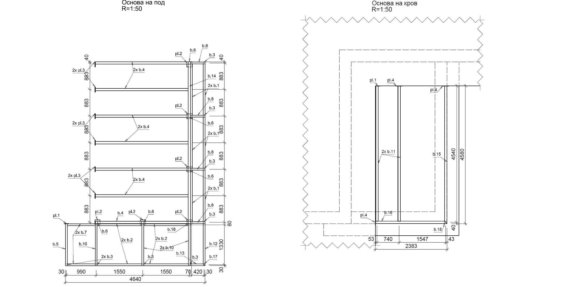
Проект за санација и ентериерно уредување на стара хидроцентрала - Матка во едукативен центар на ЕВН - 2015 год

проекти / proekti
проекти / proekti
проекти / proekti
проекти / proekti
проекти / proekti
проекти / proekti
проекти / proekti