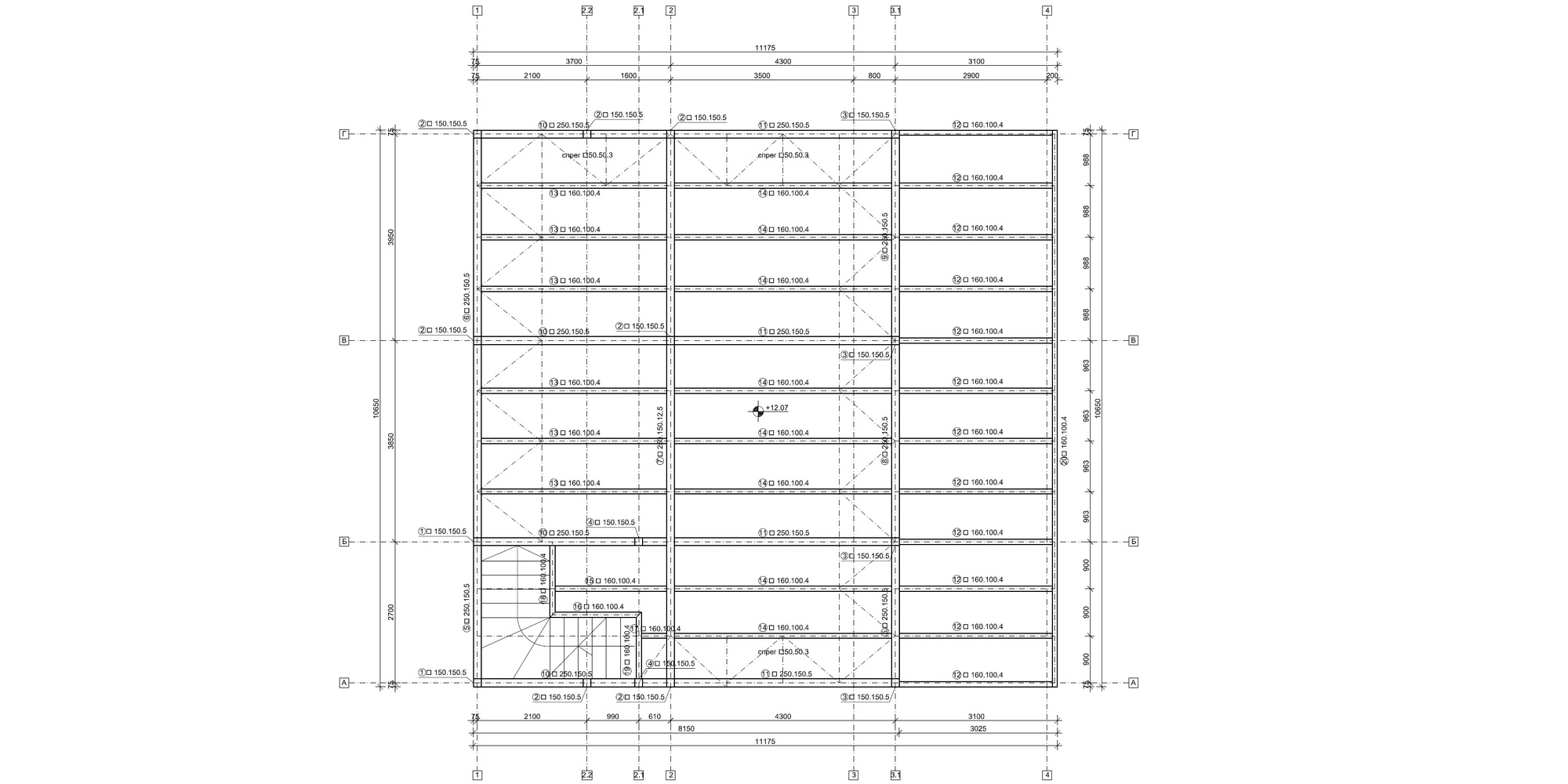
Проект за надградба на станбен објект, Тафталиџе, Скопје - 2015 год

проекти / proekti
проекти / proekti
проекти / proekti