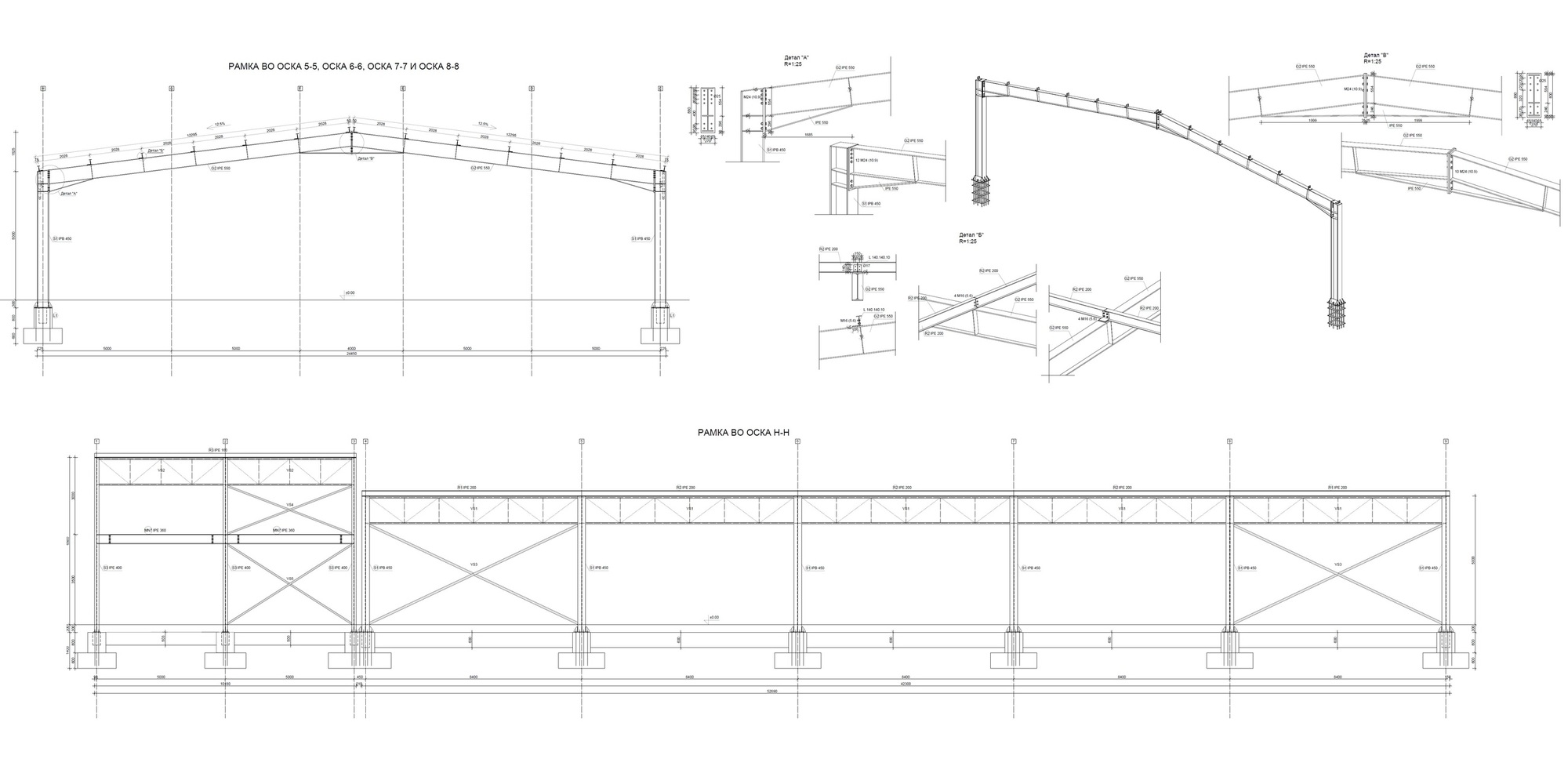
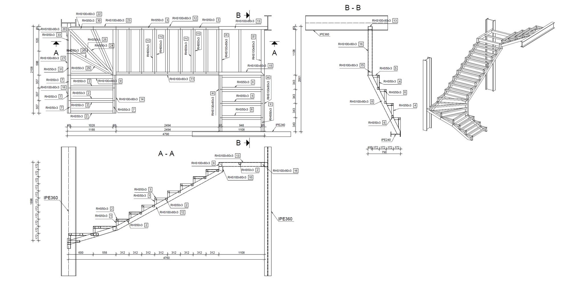
Проект за хала - Производен погон со администрација, Тетово - 2016 год

проекти / proekti
проекти / proekti
проекти / proekti
проекти / proekti
проекти / proekti
проекти / proekti
проекти / proekti