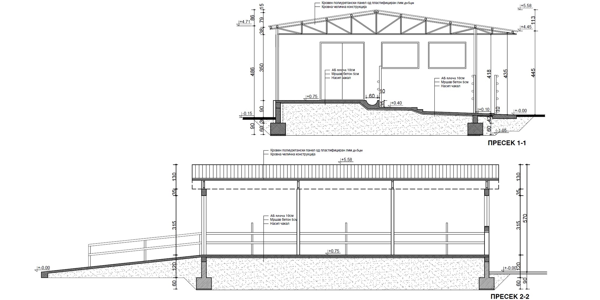
Проект: Фарма за тов на јунци - објекти: Штала и Бокс, Гевгелија - 2016 год

проекти / proekti
проекти / proekti
проекти / proekti
проекти / proekti
проекти / proekti
проекти / proekti
проекти / proekti