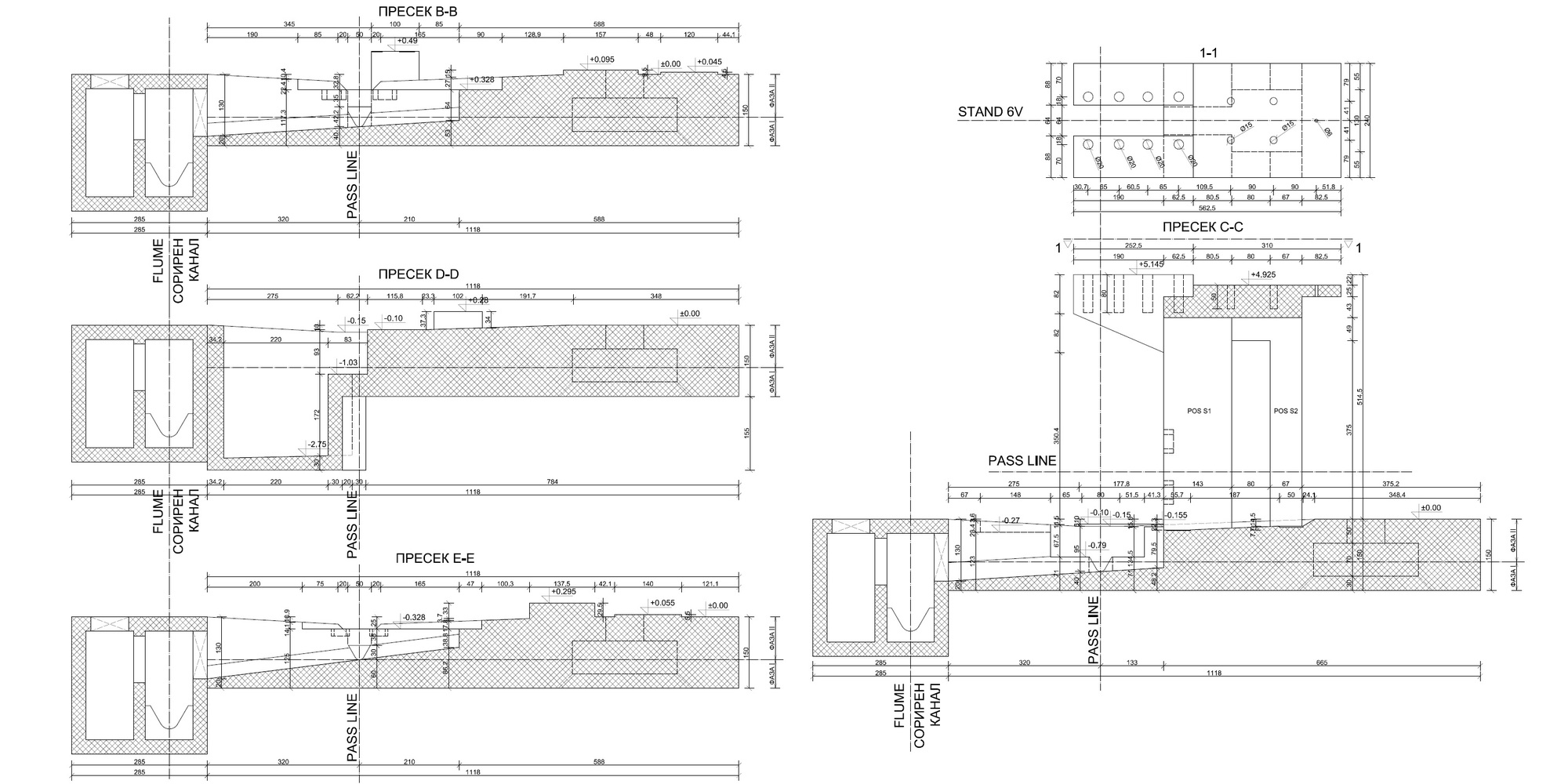
Проект: Темели за процесна опрема - Стендови 5-22 / Stand 5-22 - Дојран Стил, с.Николиќ, Дојран - 2016 год

проекти / proekti
проекти / proekti
проекти / proekti