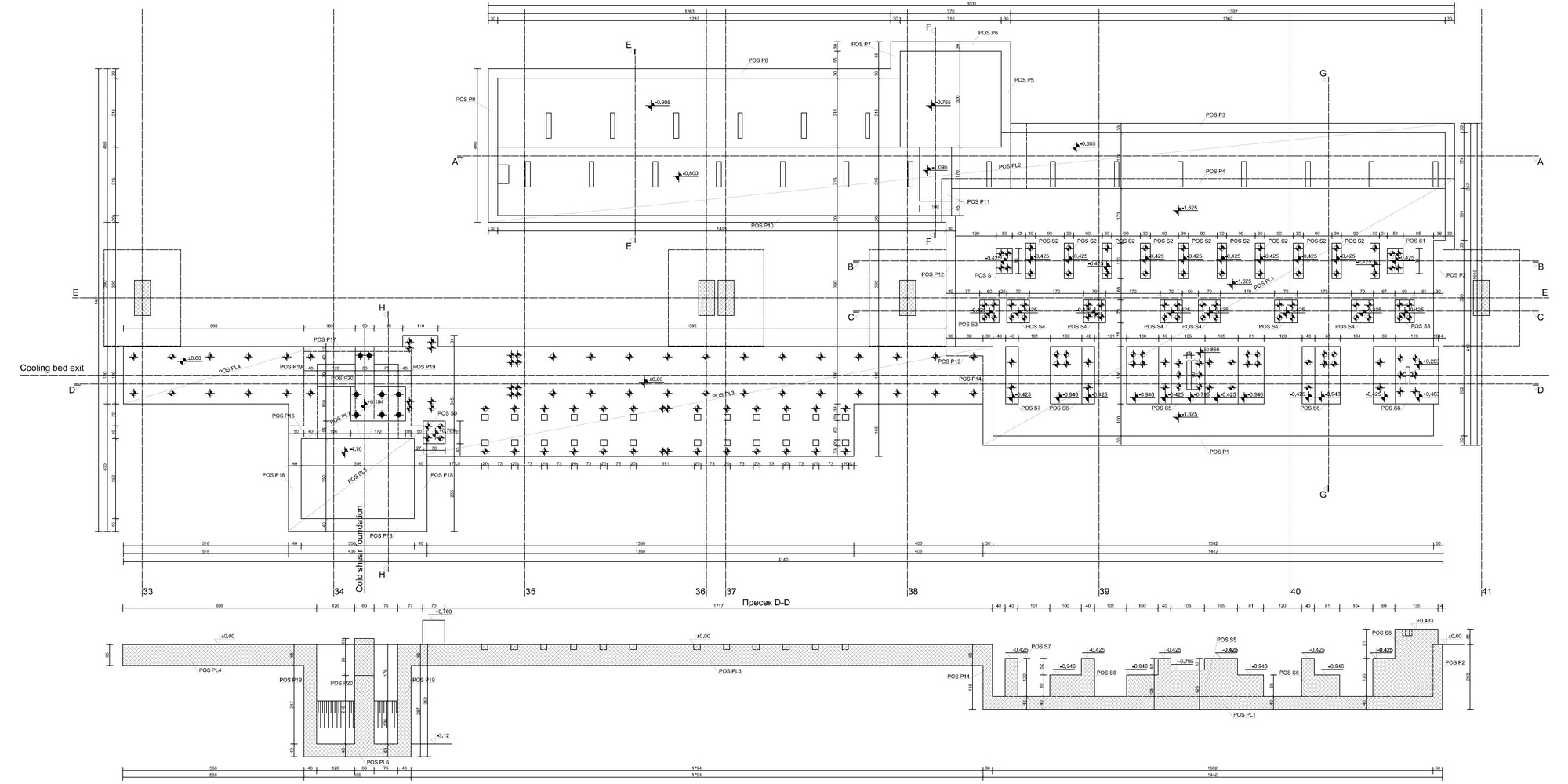
Проект: Темели за процесна опрема - Излез од разладна маса / Finishing Area - Дојран Стил, с.Николиќ, Дојран - 2016 год

проекти / proekti
проекти / proekti