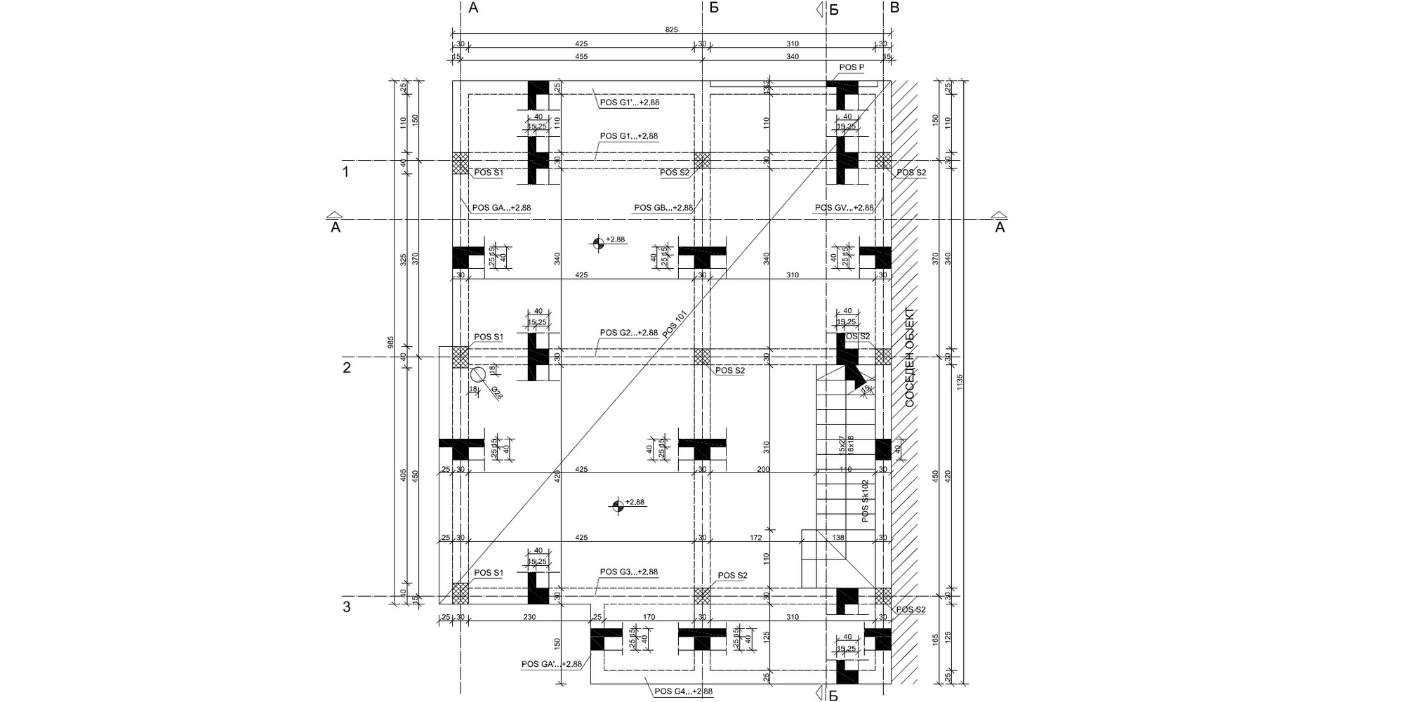
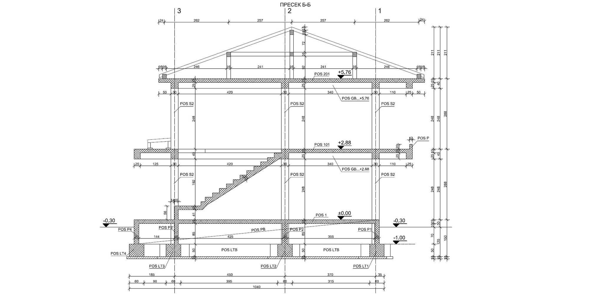
Проект за индивидуална куќа, Штип - 2016 год

проекти / proekti
проекти / proekti
проекти / proekti