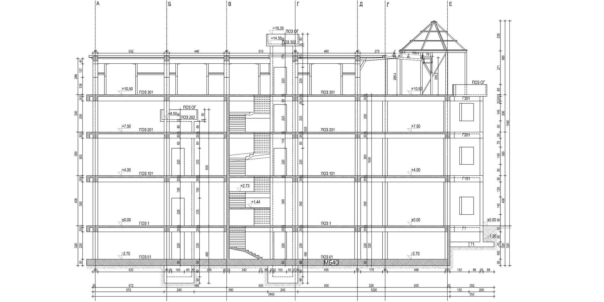
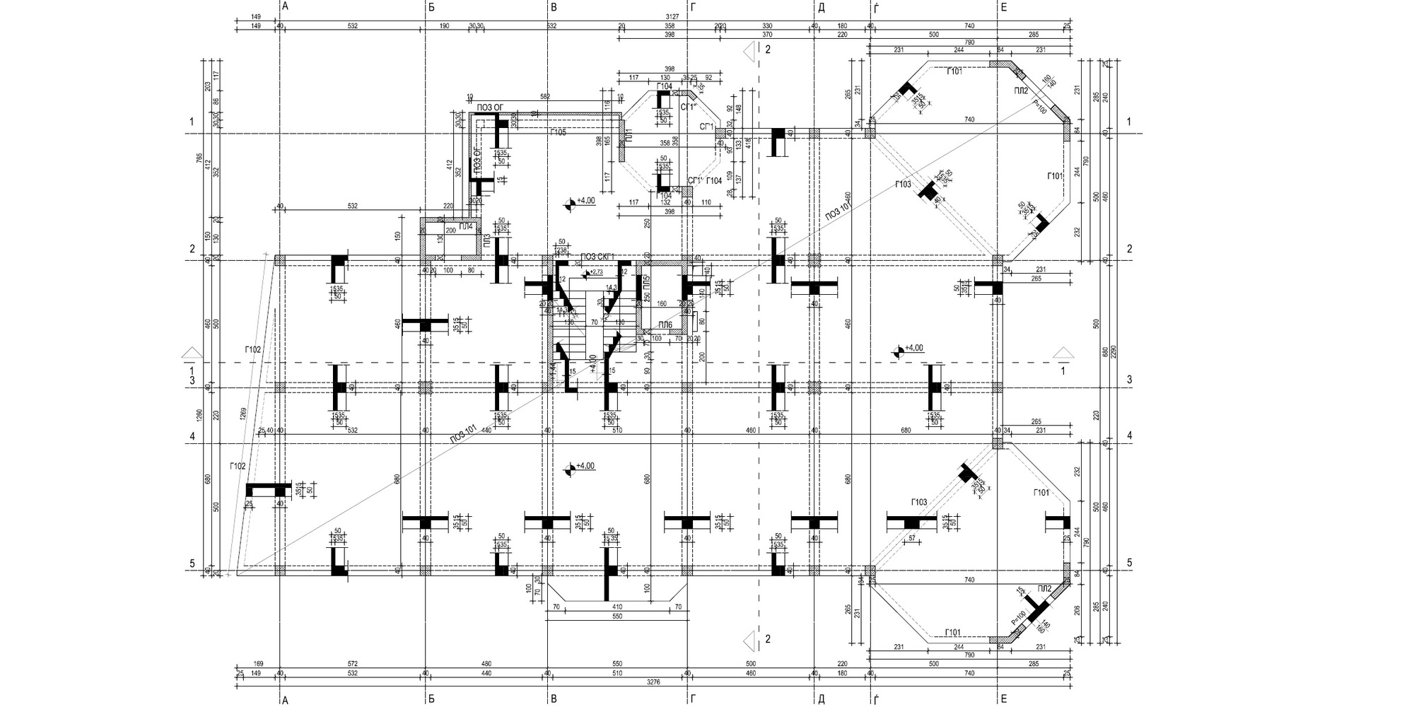
Проект за Установа за социјална заштита (фаза I), Добри Дол, Скопје - 2016 год

проекти / proekti
проекти / proekti
проекти / proekti
проекти / proekti