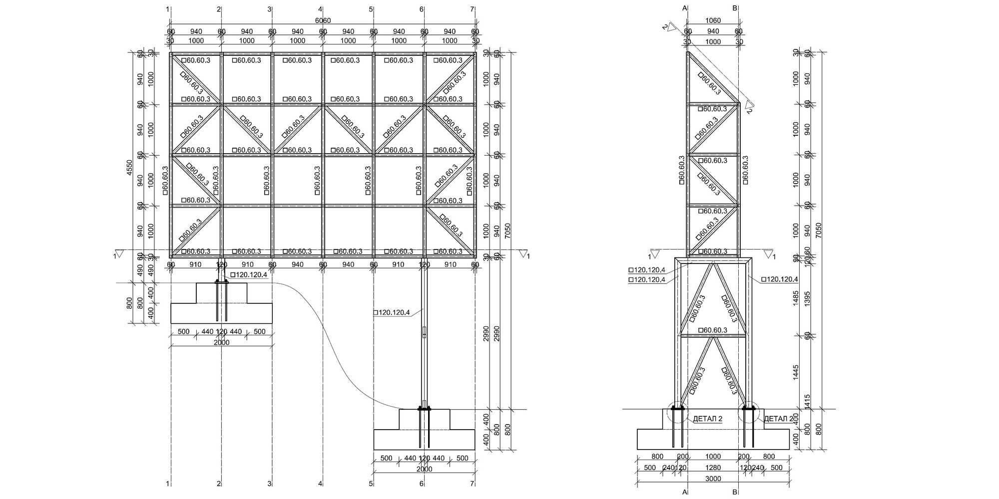
Проект: Конструкција за рекламно пано, с.Сопот, Велес - 2017 год

проекти / proekti
проекти / proekti