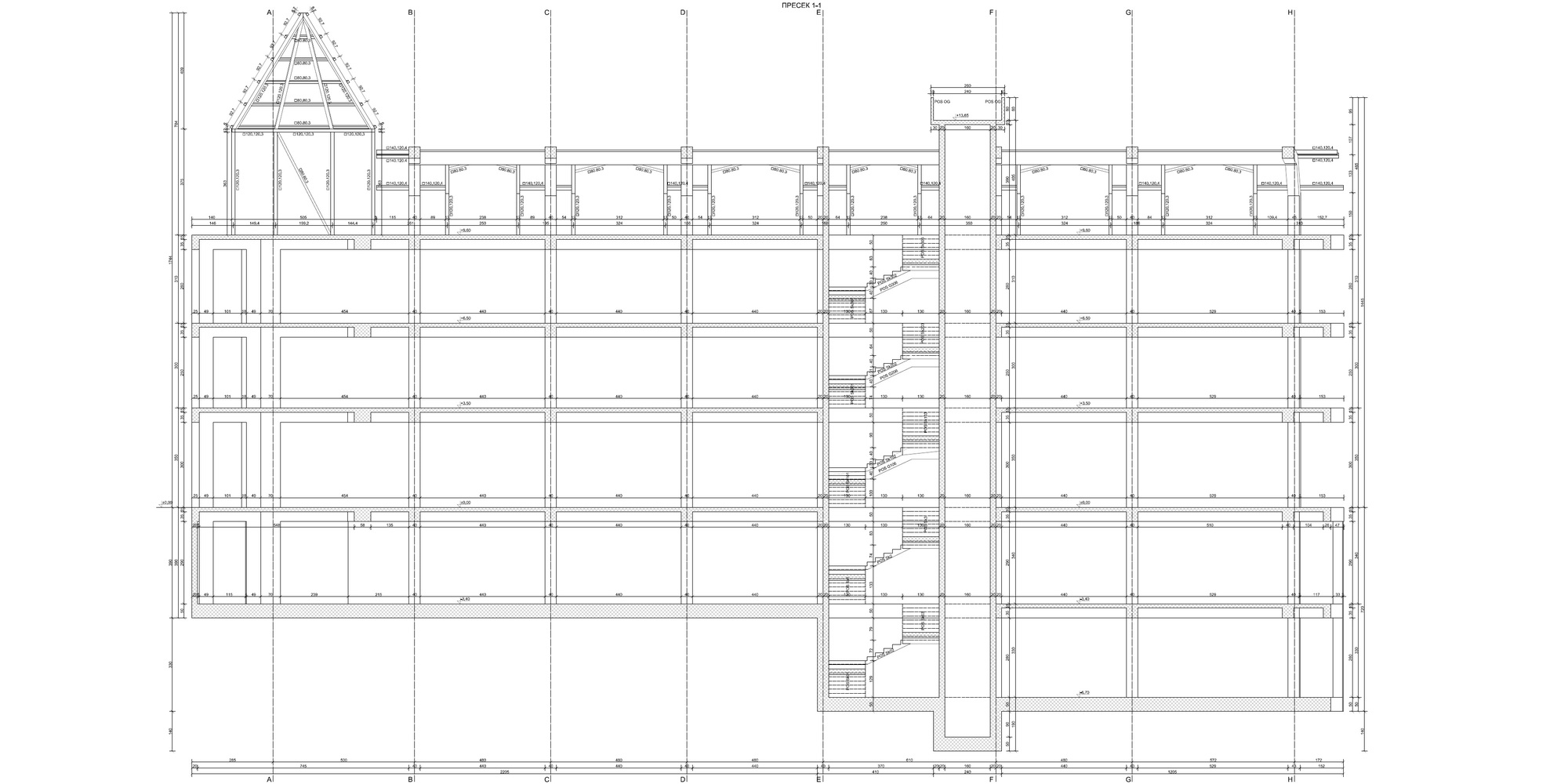
Проект за Установа за социјална заштита и рехабилитација (фаза II), Добри Дол, Скопје - 2017 год

проекти / proekti
проекти / proekti
проекти / proekti
проекти / proekti