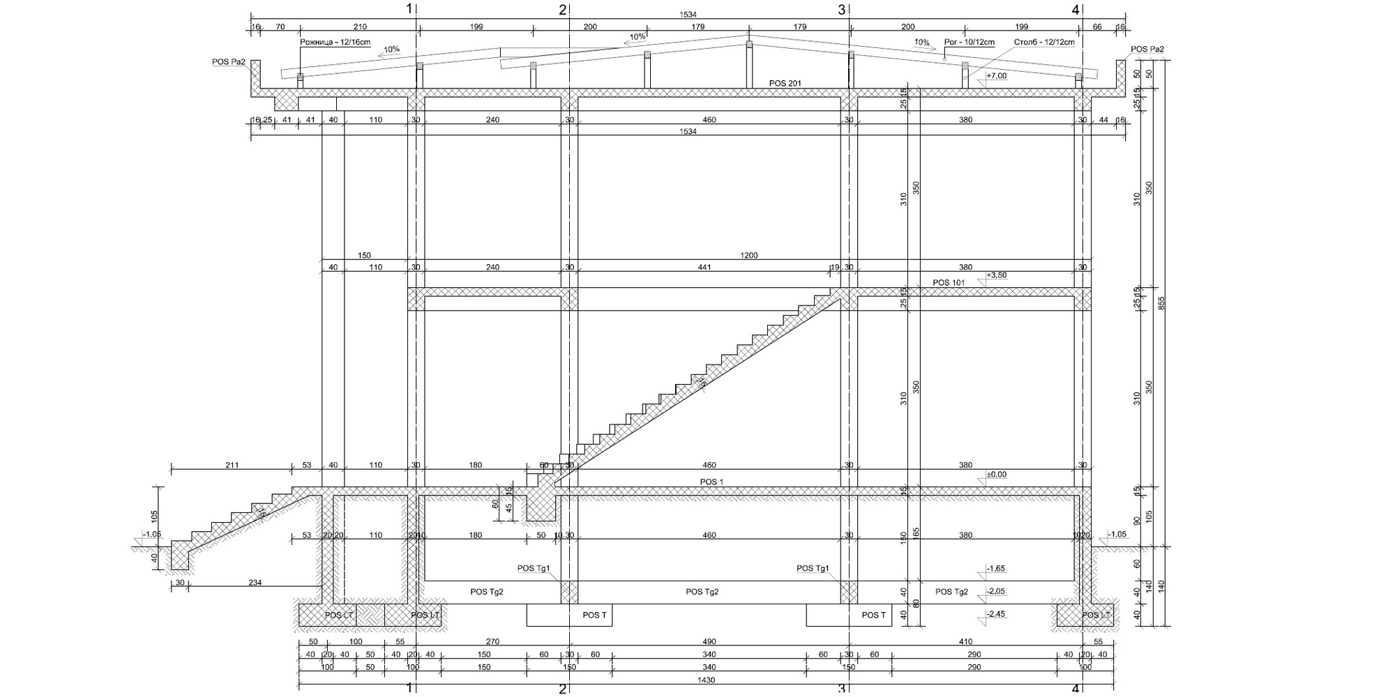
Проект за индивидуална куќа, с.Радиовце - 2017 год

проекти / proekti
проекти / proekti