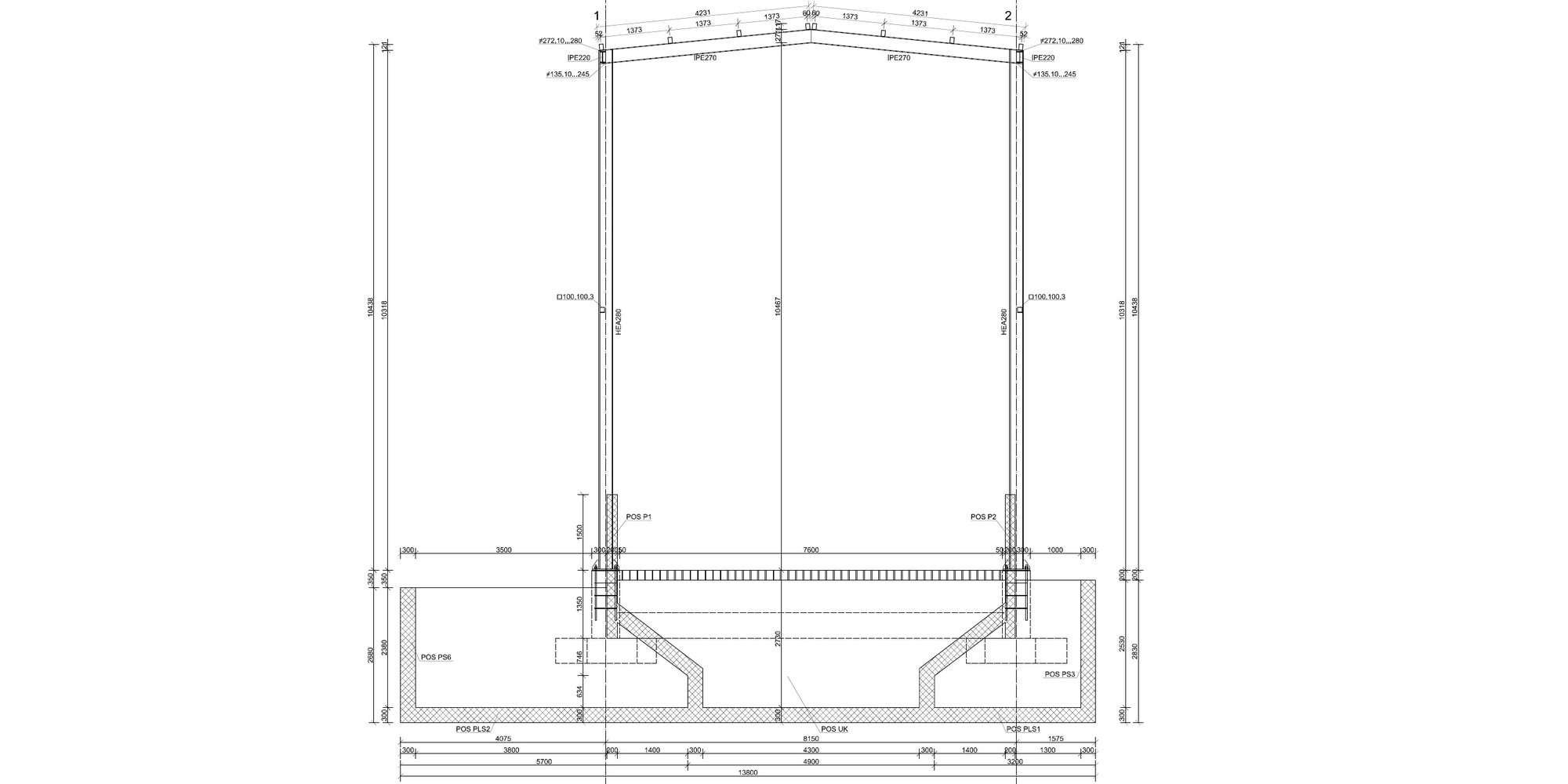
Проект за Силоси за складирање на житарици со простории за производство на добиточна храна, Каратманово - 2017 год

проекти / proekti
проекти / proekti
проекти / proekti
проекти / proekti
проекти / proekti
проекти / proekti
проекти / proekti
проекти / proekti
проекти / proekti
проекти / proekti