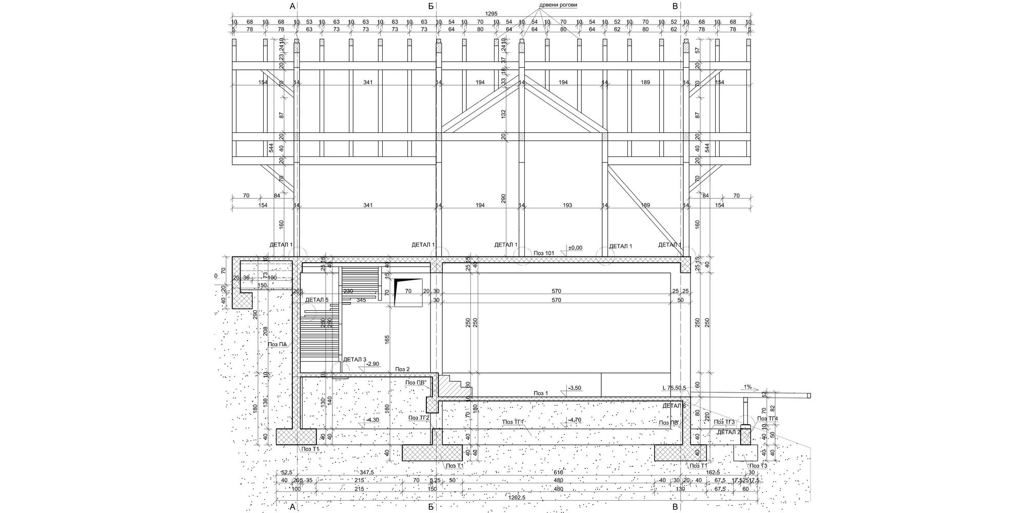
Проект за Викенд куќа, Маврово - 2018

проекти / proekti
проекти / proekti