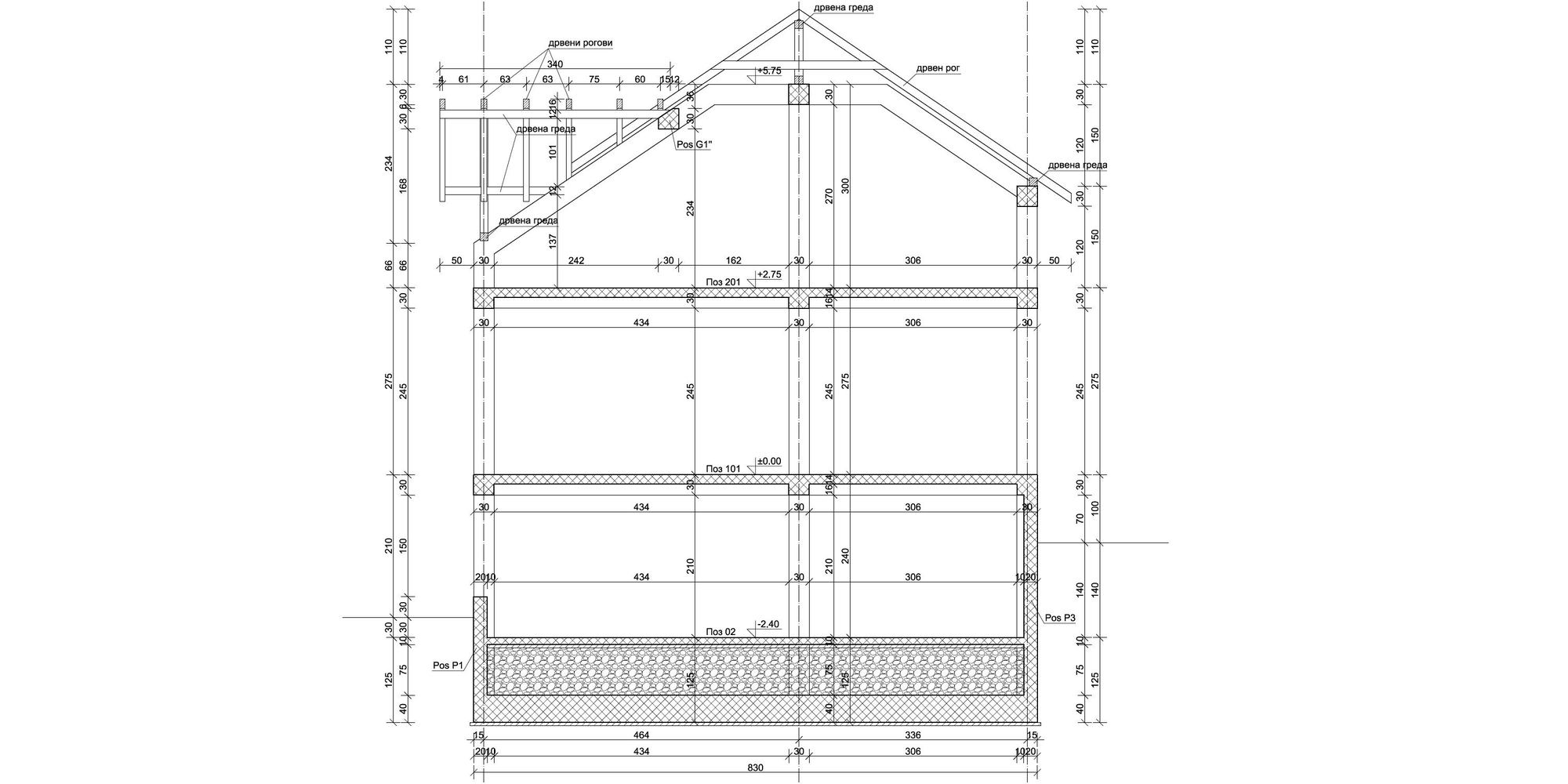
Проект за индивидуална куќа, Скопје - 2018

проекти / proekti
проекти / proekti